BUREAU
D'ETUDES
Doté d’une équipe de techniciens bureau d’études performants, nous sommes équipés des derniers logiciels métiers et multi-gammes.
Tous nos collaborateurs ont une expérience significative de la fabrication de menuiseries aluminium ou du chantier. Dès la demande client, nous savons définir la meilleure solution technique et budgétaire.
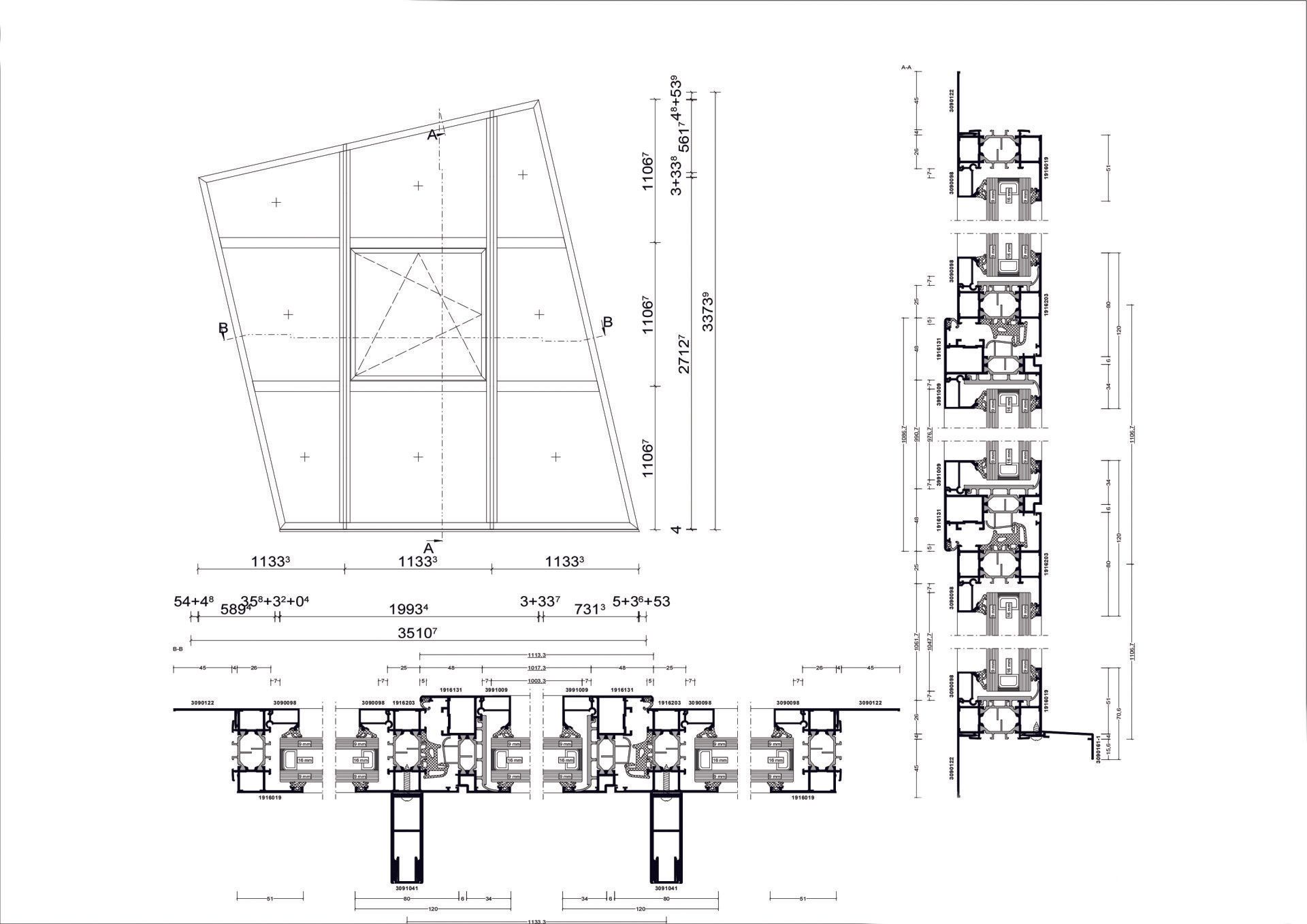
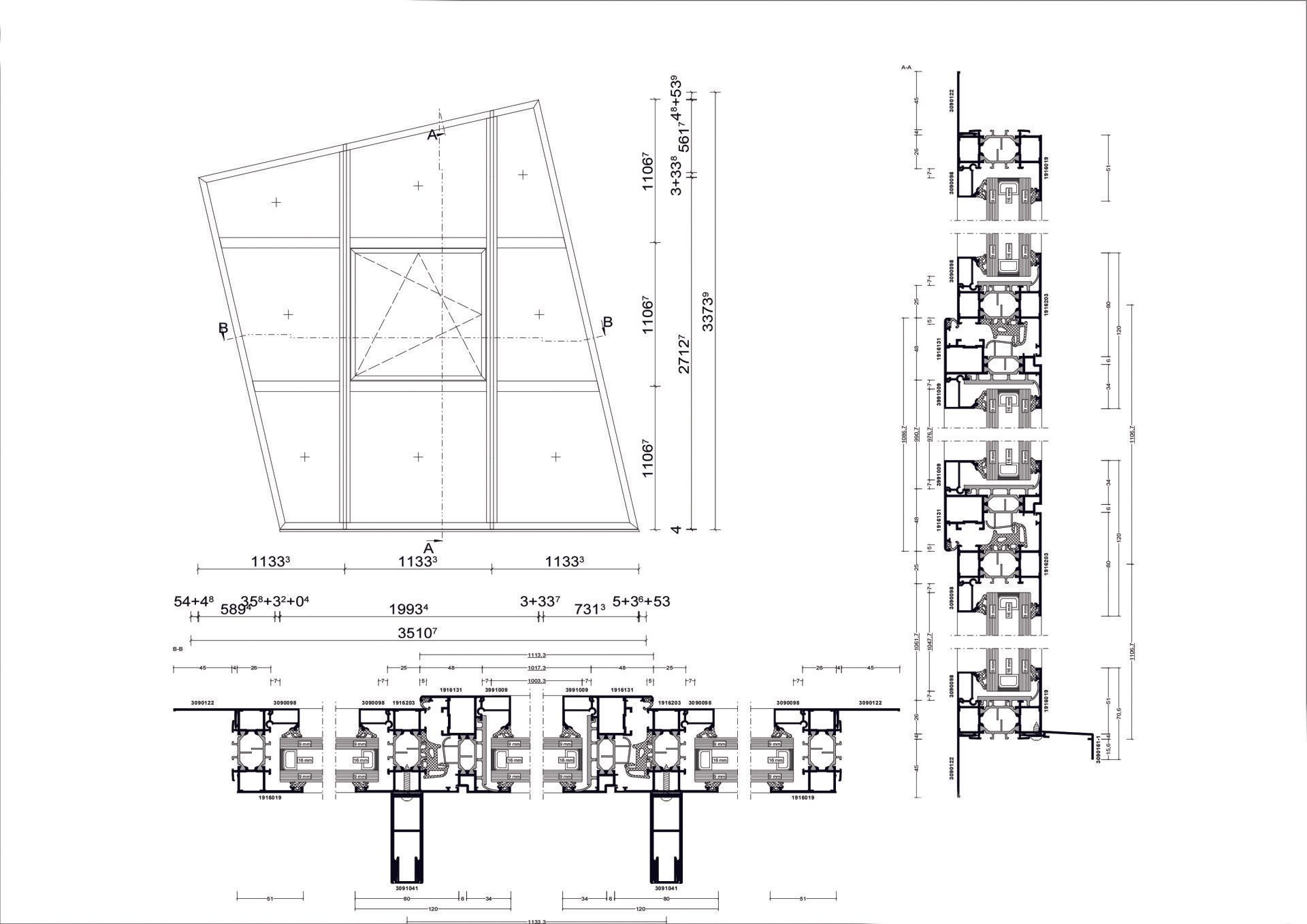
Que ce soit 2D, 3D, calculs des performances thermiques ou d’inerties des façades, notre bureau d’études vous accompagnera pour la réalisation de vos plans, mais aussi pour toutes les demandes des bureaux d’études thermiques, bureaux de contrôle, architectes, donneurs d’ordres
Dès la validation des plans, le lancement en production se fait via notre ERP directement sur nos machines de production.




