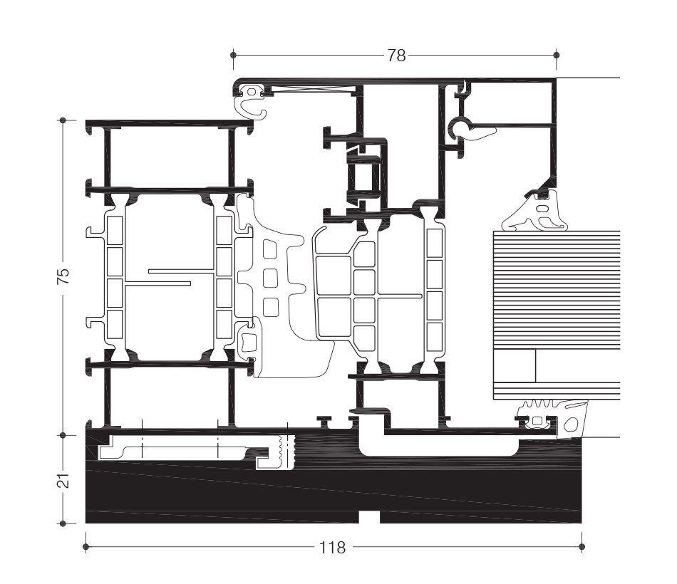
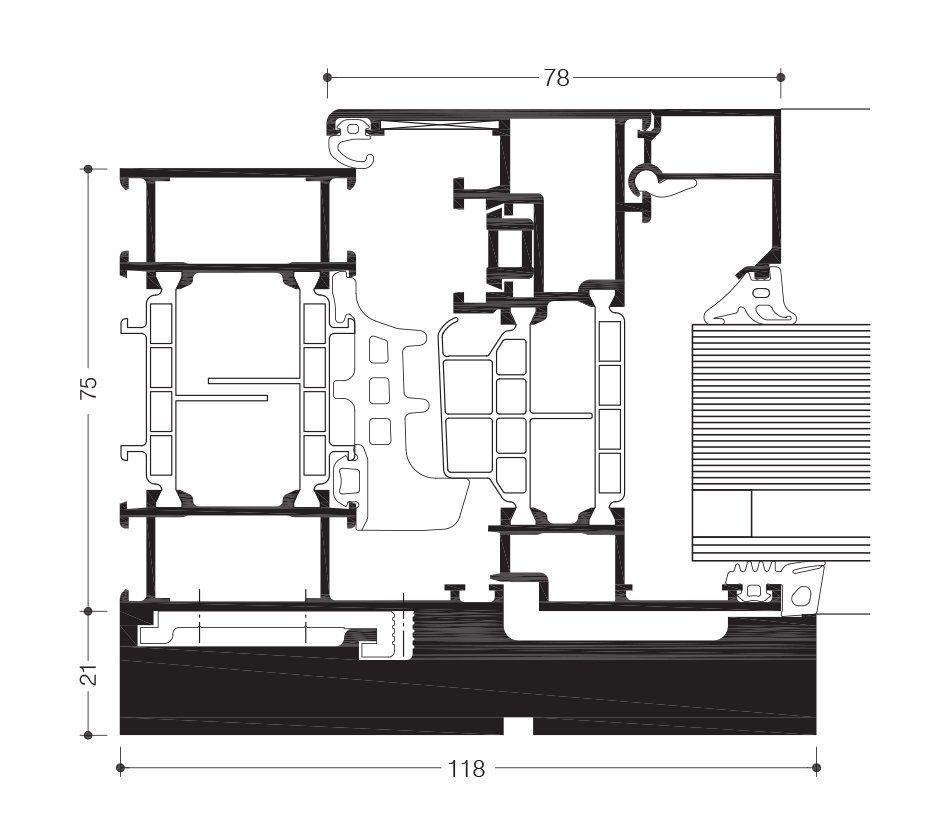
Menuiseries Pare-balles
Les menuiseries pare-balles protègent contre les armes à feu. Des serrures multipoints pour les portes pare-balles et un vitrage pare-balles adaptés doivent compléter l’ensemble.
Les menuiseries pare-balles protègent contre les armes à feu. Des serrures multipoints pour les portes pare-balles et un vitrage pare-balles adaptés doivent compléter l’ensemble.

- Protection contre les armes à feu
- Blindage aluminium

- Protection contre les armes à feu
- Différents types d’ouvertures

- Renforts supplémentaires au niveau des montants et des traverses
- Résistance pare-balles selon la norme DIN EN 1522
- Capots et montants rectangulaires
