Menuiseries Respirantes R’Pur
Les fenêtres respirantes R’PUR sont idéales pour les établissements tertiaires (hôtels, restaurants, Hôpitaux, bâtiments scolaires...).
Le store est intégré dans la fenêtre, pour un design sobre et une parfaite hygiène.
- Hautes performances thermiques, acoustiques et solaires.
- Intégration d’un store entre les deux volumes verriers
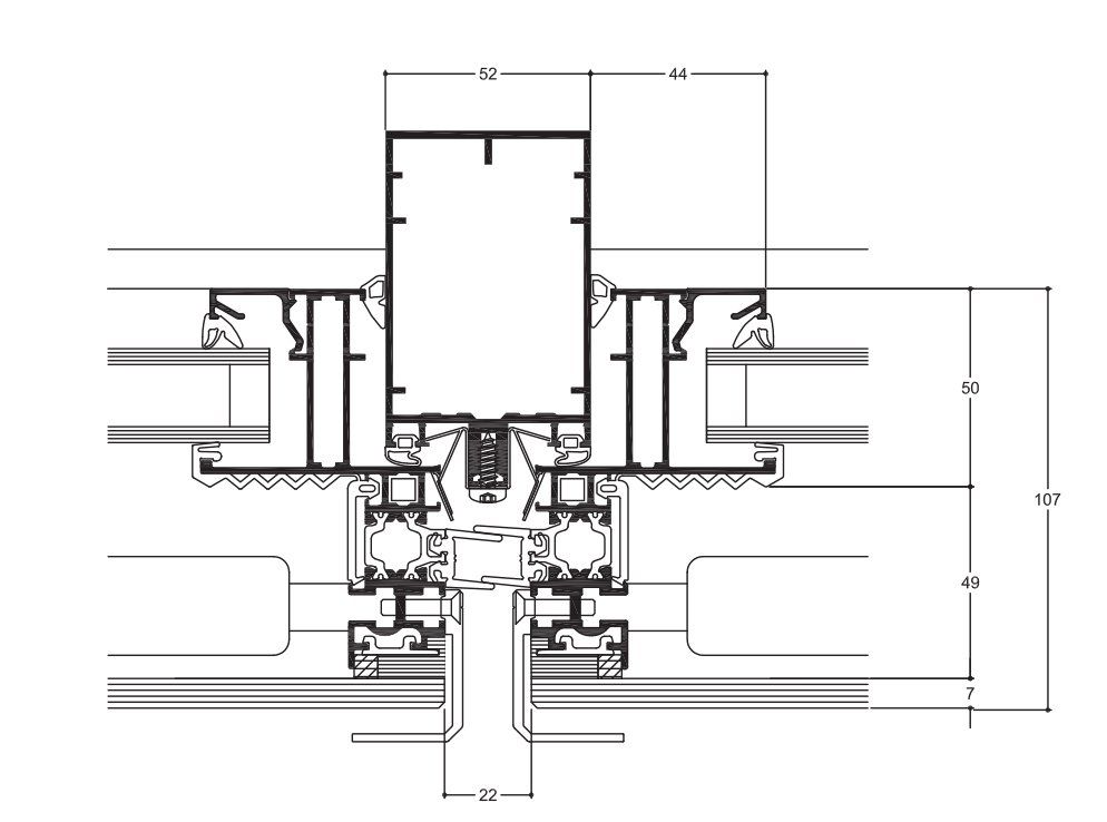
Menuiseries Respirantes
115 AFS
La particularité des fenêtres respirantes 115 AFS est que l’ouvrant intérieur est doublé d’un ouvrant supplémentaire, créant ainsi une lame d’air entre les deux.
Façade Respirante MECANO
La façade «respirante» permet de mettre en place une isolation acoustique, une isolation thermique et une protection solaire car elle intègre des châssis d’aspect V.E.C. (verre extérieur collé) et V.E.P. (verre extérieur parclosé).
Les parties fixes et ouvrantes sont confondues, le design de la façade est préservé.













