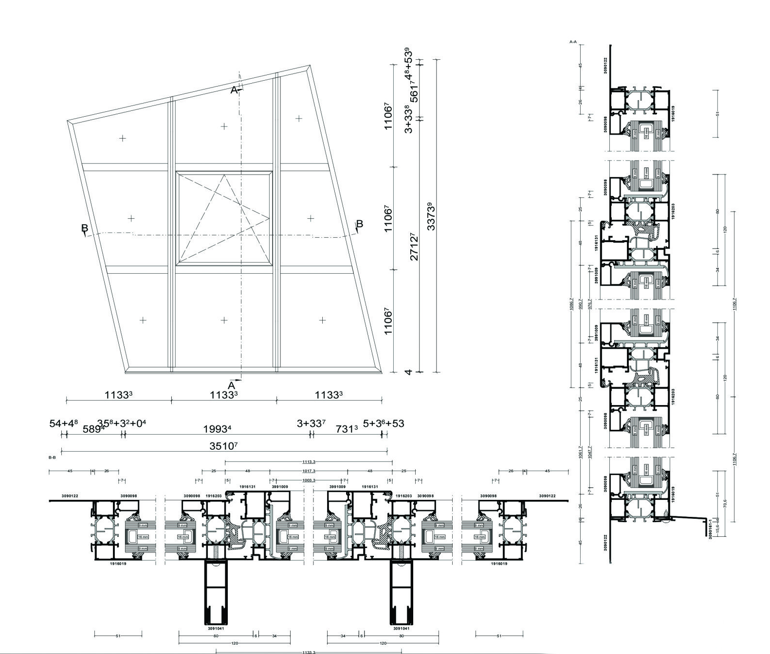
ENSEMBLES COMPOSES
Grande variété de compositions possibles, des plus simples aux plus complexes : menuiseries cintrées, des trapèzes, des triangles, ...
On s’adapte à tous vos projets de rénovation ou neuf.
SUR-MESURE - TOUTES FORMES - CINTRES - CHOIX COULEURS





