Menuiseries Anti-effraction
Les
menuiseries anti-effraction répondent à la
norme Européenne EN 1627.
Classifications
anti-effraction
RC1, RC2 et RC3.
Les
menuiseries anti-effraction répondent à la
norme Européenne EN 1627.
Classifications
anti-effraction
RC1, RC2 et RC3.

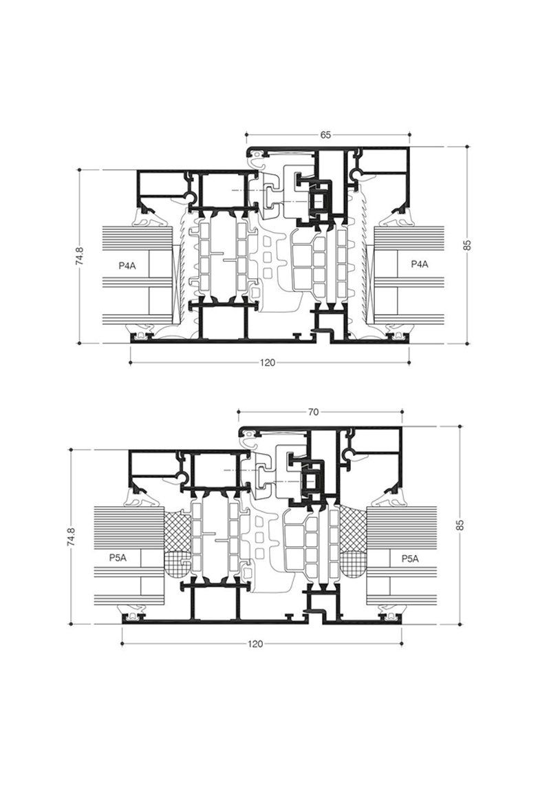
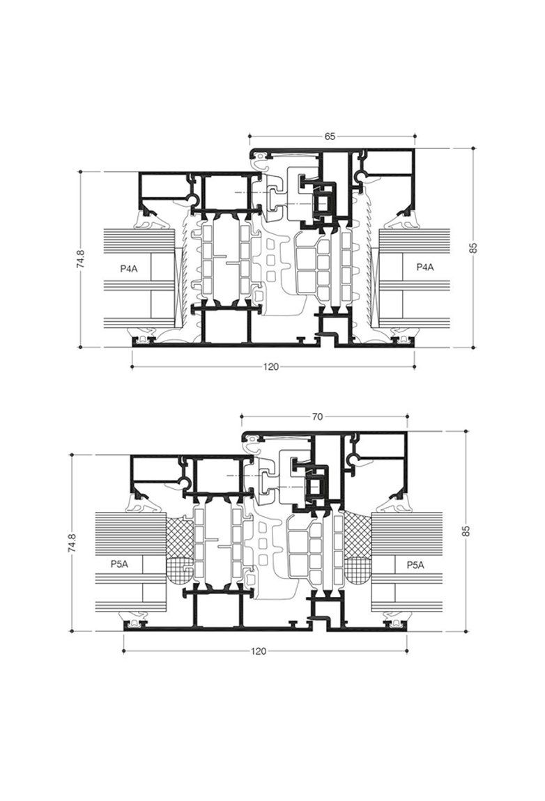
- Porte classée RC1, RC2, RC3
- Nombreuses options de serrures, béquilles et
barres anti-panique
- Porte 1 ou 2 vantaux

- Fenêtre répondant à la norme Européenne EN 1627
- Esthétique identique gammes standards

- Serreur spécifique et renforts supplémentaires au niveau des montants et des traverses
- Prise de volume jusqu’à 51 mm
- Capots et montants rectangulaires
